Casa singola in vendita a Ronchi dei Legionari
Ronchi dei Legionari
Zona: - via delle VOlpi, 1
€ 215.000
#130 mq
#2
#1
Vedi più foto
Cod. C_100
€ 215.000
Classe energetica: E EP glnr: 149.60 kwh/㎡
Nuovo

Casa singola in vendita a Ronchi dei Legionari

- via delle VOlpi, 1
# 130 mq
# 1 Bagni
# 2 Camere
Descrizione

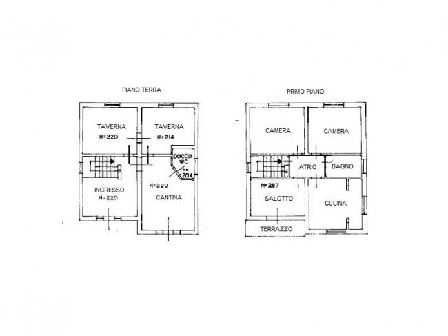
Casa singola situata a Ronchi dei Legionari (San Vito) al confine con Monfalcone e Staranzano, vicina ai mezzi pubblici e tutti i servizi di primaria necessità.
Sviluppata su due livelli, giardinetto e ampia rimessa.
Al piano terra ampio ingresso, comoda taverna e spaziosa cantina con wc ed ingresso indipendente, ideale per vari utilizzi come lavanderia, palestra, laboratorio, stanza hobby, studio o semplicemente come deposito.
Da una comoda scala si accede al piano abitazione, con un atrio, la cucina abitabile e molto luminosa, il salotto con terrazzo, due camere matrimoniali e il bagno. Il salotto potrebbe essere utilizzato come terza camera da letto e la cucina come un open space (salotto con angolo cottura).
La rimessa di 30 mq ed il piccolo giardino completano la proprietà.
Portoncini blindati d'ingresso rivestiti in legno con meccanismo antieffrazione, infissi in legno/alluminio con vetrocamera, inglesine, anta ribalta, zanzariere ed alcune tapparelle elettriche.

Piano Terra
INGRESSO
TAVERNA
CANTINA / LAVANDERIA
WC

Primo Piano
AMPIA CUCINA
SALOTTO
DUE CAMERE MATRIMONIALI
BAGNO

RIMESSA da 30 mq
GIARDINO PRIVATO

RIF. - C_100

Il contenuto integrale del presente annuncio non costituisce elemento contrattuale, ma è da considerarsi puramente indicativo.
Per visionare tutte le immagini disponibili, Vi invitiamo a visitare il sito web dell'agenzia.
Per maggiori informazioni, per concordare un appuntamento in ufficio o visitare questo immobile, chiama al 0481 285069.

COCO immobiliare
Via G. Carducci 22/24
Ronchi dei Legionari (GO)
ph. + 39 0481 285069
e-mail chiedi@cocoimmobiliare.com
web www.cocoimmobiliare.com

si riceve su appuntamento
Rimani sempre aggiornato, seguici sui nostri canali social
Facebook: cocoimmobiliareronchi
Instagram: @cocoimmobiliare

  • Casa singola in vendita a Ronchi dei Legionari
  • Casa singola in vendita a Ronchi dei Legionari
  • Casa singola in vendita a Ronchi dei Legionari
  • Casa singola in vendita a Ronchi dei Legionari
  • Casa singola in vendita a Ronchi dei Legionari
  • Casa singola in vendita a Ronchi dei Legionari
  • Casa singola in vendita a Ronchi dei Legionari
  • Casa singola in vendita a Ronchi dei Legionari
  • Casa singola in vendita a Ronchi dei Legionari
  • Casa singola in vendita a Ronchi dei Legionari
  • Casa singola in vendita a Ronchi dei Legionari
  • Casa singola in vendita a Ronchi dei Legionari
  • Casa singola in vendita a Ronchi dei Legionari
  • Casa singola in vendita a Ronchi dei Legionari
  • Casa singola in vendita a Ronchi dei Legionari
  • Casa singola in vendita a Ronchi dei Legionari
  • Casa singola in vendita a Ronchi dei Legionari
  • Casa singola in vendita a Ronchi dei Legionari
  • Casa singola in vendita a Ronchi dei Legionari
  • Casa singola in vendita a Ronchi dei Legionari
mostra di piùmostra di meno
Caratteristiche
Scopri le caratteristiche di questo immobile
Nelle vicinanze
Servizi e infrastrutture della zona
Ubicazione immobile
COCO immobiliare

P.IVA: 01146910318


Contattaci


Alcuni immobili che potrebbero interessarti
Casa singola in vendita a Staranzano
in Vendita
  Visto ma aggiornato
Novità
Staranzano
Bistrigna
€ 249.000
Casa singola in vendita a Staranzano
Cod. C_370
Ecco a Staranzano una casa da vedere. Indipendente, con comodi spazi abitativi, è posta su un lotto piantumato ulteriormente edificabile....
Dettagli
Casa singola in vendita a San Canzian d'Isonzo
in Vendita
  Visto ma aggiornato
San Canzian d'Isonzo
Begliano
€ 230.000
Casa singola in vendita a San Canzian d'Isonzo
Cod. C_697
Occasione unica, casa singola su unico piano con 500 mq di giardino in zona assolutamente tranquilla.Casa ante'67 poi ristrutturata...
Dettagli
Villa in vendita a Ronchi dei Legionari
in Vendita
  Visto ma aggiornato
Ronchi dei Legionari
Vermegliano
€ 269.000
Villa in vendita a Ronchi dei Legionari
Cod. V_202
Questa bellissima villa in vendita si trova a Ronchi dei Legionari, immersa nel verde e nella quiete della campagna.La proprietà è...
Dettagli
Appartamento in vendita a Ronchi dei Legionari
in Vendita
Ronchi dei Legionari
Tratt. riservata
Appartamento in vendita a Ronchi dei Legionari
Cod. APP_119
Hai deciso di vendere casa ma ti sei reso conto che trovare la persona che ti offra il prezzo giusto è più complicato di quanto immaginavi?E'...
Dettagli
Ultimo aggiornamento 17/10/2025
×
Codice
Contratto
Scegli dove cercare
Tipologia - multiscelta
Prezzo


Totale mq


Locali minimi
Bagni minimi
Camere minime
Altre opzioni - multiscelta